Off Center Pivot Door and 45 Seconds
The process of entering your house is important ... there is a sequence of events that should happen and preparing the narrative of experience is something that we spend a fair amount of time addressing. Bottom line - you should have an amazing front door
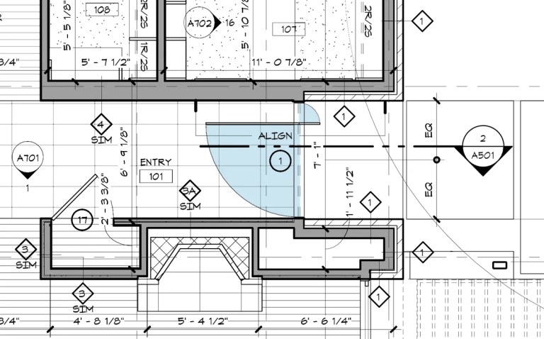
The process of entering your house is important. There is a sequence of events that should happen from the time someone arrives at the curb and makes their way to the front door, and preparing this narrative of experience is something that we spend a fair amount of time addressing. There is a myriad of things to consider when preparing the entry narrative – things like security (both real and perceived), protection from the weather, is it warm and inviting, does it set the tone for the rest of the house, etc..We have a project that is close to wrapping up, and by “close” I mean: “the owners have moved in.” The landscaping isn’t done and there are still a handful of punch list type items to address – but – everything was technically ready for occupancy and as a result, the owners move in and as a result, the front door is needed to be done (and this is a post on the front door after all). I’ve talked about this particular front door before in a post titled “The Front Door to Your House is Important“, but today I thought I would show how everything came together. The plan for the front door is shown above but I want you to pay particular attention to the arc...
The process of entering your house is important. There is a sequence of events that should happen from the time someone arrives at the curb and makes their way to the front door, and preparing this narrative of experience is something that we spend a fair amount of time addressing. There is a myriad of things to consider when preparing the entry narrative – things like security (both real and perceived), protection from the weather, is it warm and inviting, does it set the tone for the rest of the house, etc..We have a project that is close to wrapping up, and by “close” I mean: “the owners have moved in.” The landscaping isn’t done and there are still a handful of punch list type items to address – but – everything was technically ready for occupancy and as a result, the owners move in and as a result, the front door is needed to be done (and this is a post on the front door after all). I’ve talked about this particular front door before in a post titled “The Front Door to Your House is Important“, but today I thought I would show how everything came together. The plan for the front door is shown above but I want you to pay particular attention to the arc...
Source:
lifeofanarchitect
URL:
http://www.lifeofanarchitect.com/
| -------------------------------- |
| Saudi Arabia to build 170 kilometres-long city as part of Neom project | Dezeen |
|
|
